#1972
ELECTRICAL
Nevada
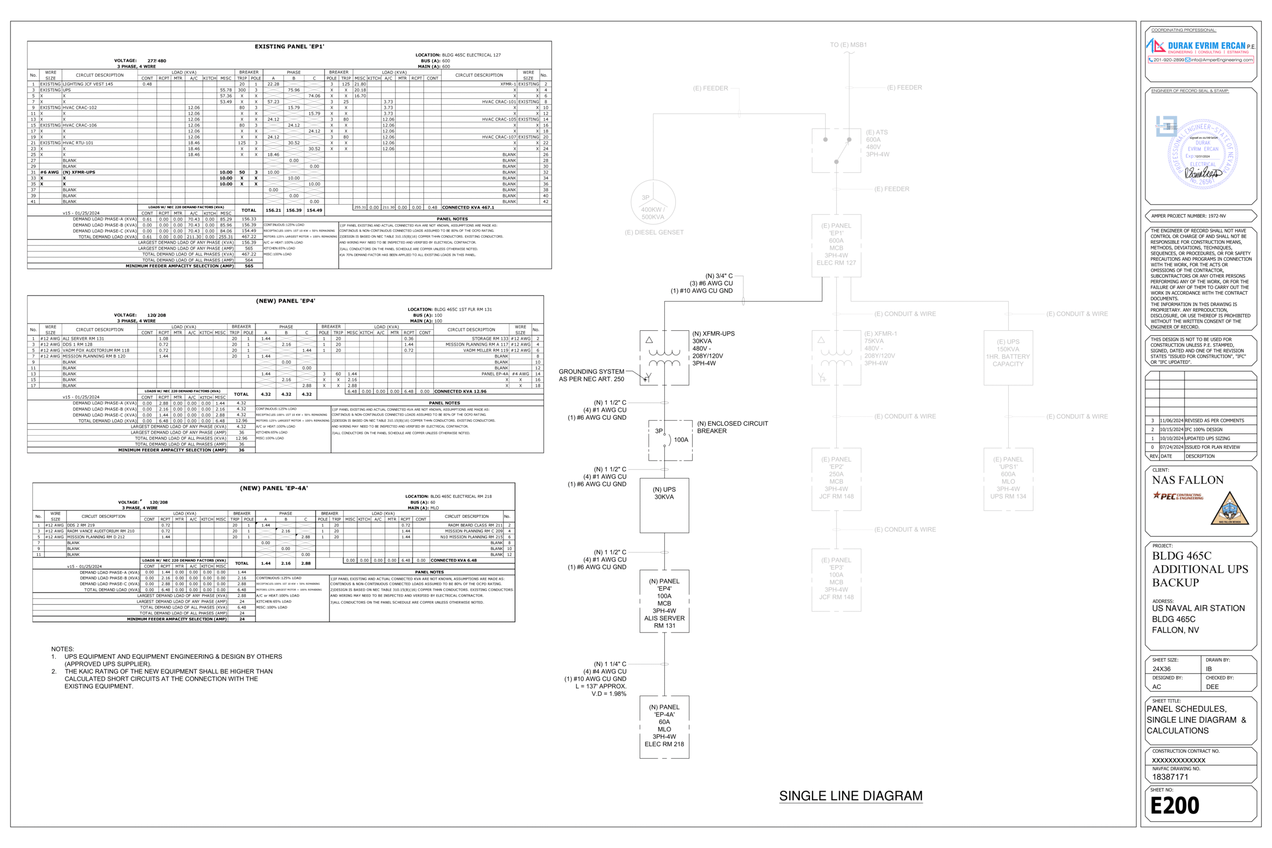
The project is for Military facility. AmperEngineering to provide electrical engineering design drawing for the installation of additional UPS backup equipment on one of their facility with the current editions of the following as adopted by USACE, OSHA, UFC & NEC 2017. The design is to install new stepdown XFMR-UPS (480-208/120v) fed from existing Panel 'EP1', 600A 3ph, 4w, 480V. From XFMR-UPS secondary side, feeder will go to the new 30KVA UPS and from new UPS, power will feed or distribute to new panels. After completing the engineering design, AmperEngineering will PE signed & sealed and issued for the approval of NAVFAC.
Copyright 2025. All rights reserved to Amper Engineering
Soliciting as Amper Engineering PC in NJ and sole practitioner in the remaining states.