#1480
ELECTRICAL
Arizona
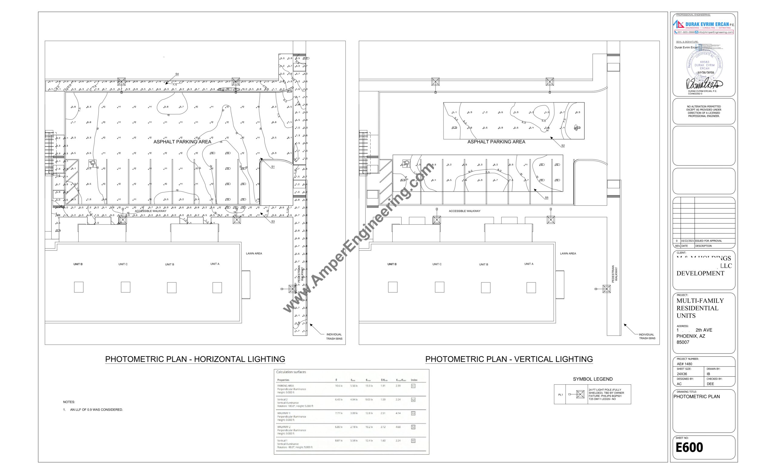
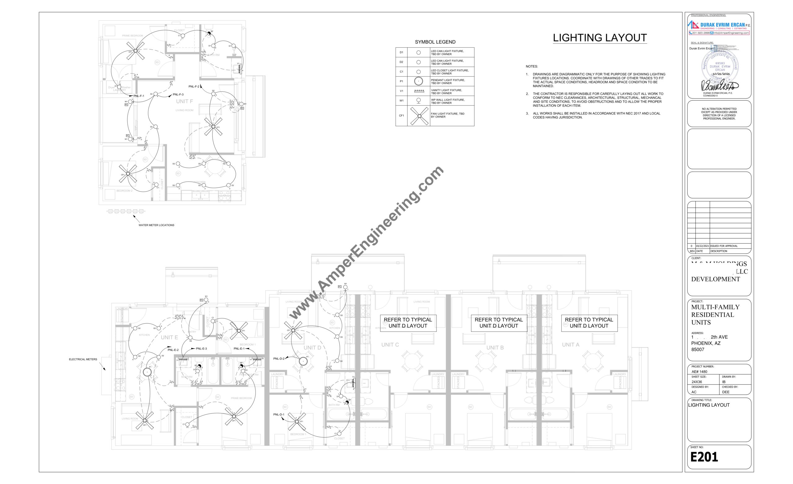
The project type is a residential apartments. An existing (4) unit building to be demolished and build new (6) units residential apartments. Underestimated by many, the residential project is an important step in any work and needs to be developed with attention and care and AmperEngineering make good the electrical design that is correctly dimensioned complying NEC requirements, for the execution of an electrical installation. The electrical design offers a number of benefits, ranging from energy savings to safety. And not least, the peace of mind of knowing you can plug in a piece of equipment without the danger of flashing power or even tripping a circuit breaker. AmperEngineering will PE signed & sealed and issued for approval to obtain local AHJ permit.
Copyright 2025. All rights reserved to Amper Engineering
Soliciting as Amper Engineering PC in NJ and sole practitioner in the remaining states.