Project #1286

  • |
  • Project #1286

Overview

Project Name :

#1286

Project Type:

ELECTRICAL

Location

Nevada

Project Description

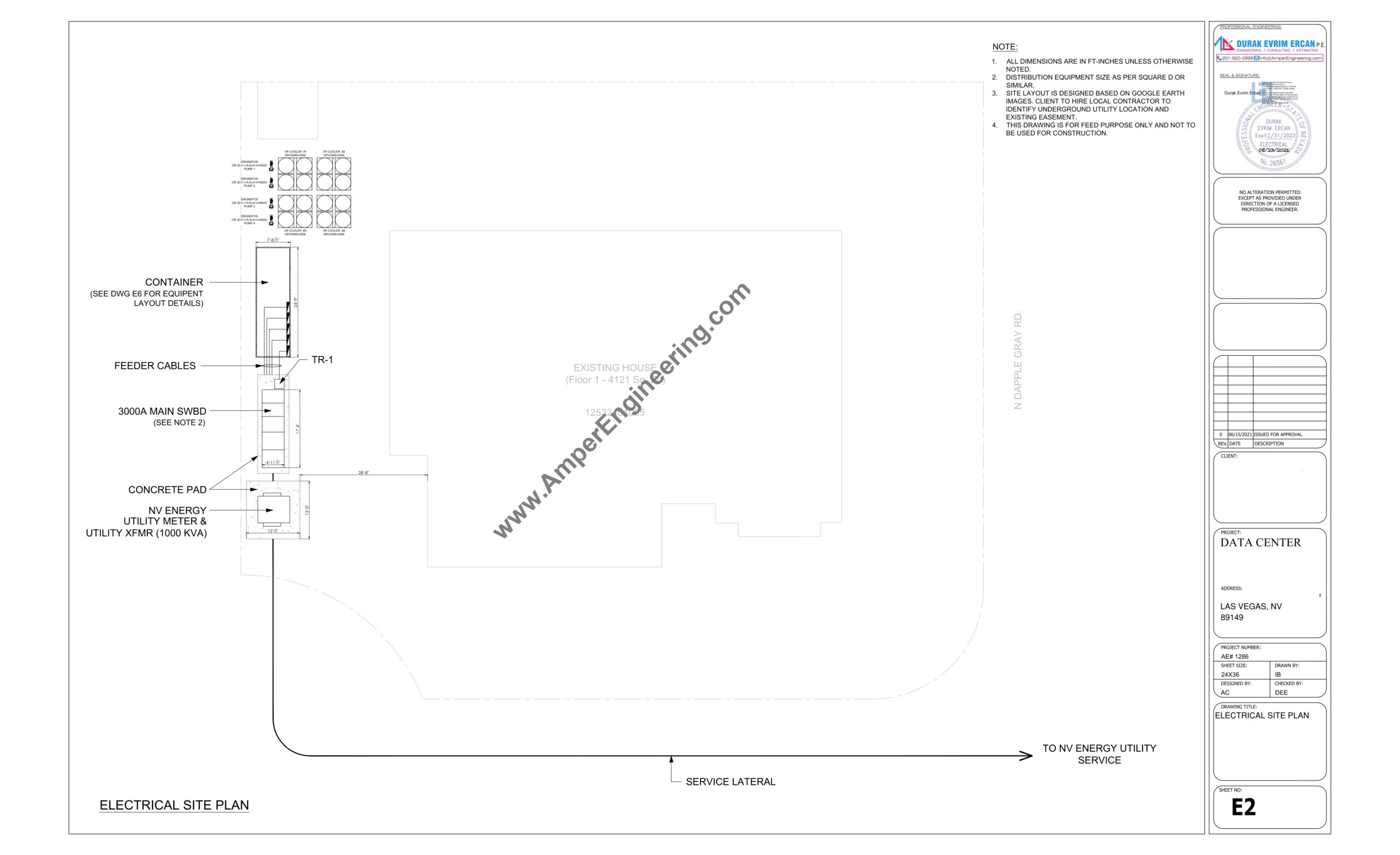
AmperEngineering perform the eletrical design of proposed crypto mining that is to be installed inside a prefabricated container van adjacent to an existing house. AmperEgineering will review the distribution network operators, the necessary electrical demand, power source verification from existing building electrical room or new transformers. The new power source will start from utility service, then fed to new utility meter & transformer rated 375kVA. From utility transformer, voltage will stepdown to 208/120V and fed to new 1200A Main Switchboard installed inside prefabricated container van. From main switchboard it will branch-off to (2) submain feeder going to 480v Panel- PP and Panel P1 (208/120v). After completing the engineering design, AmperEngineering will PE signed & sealed and issued for approval to obtain local AHJ permit.