#1196
MEP
North Dakota
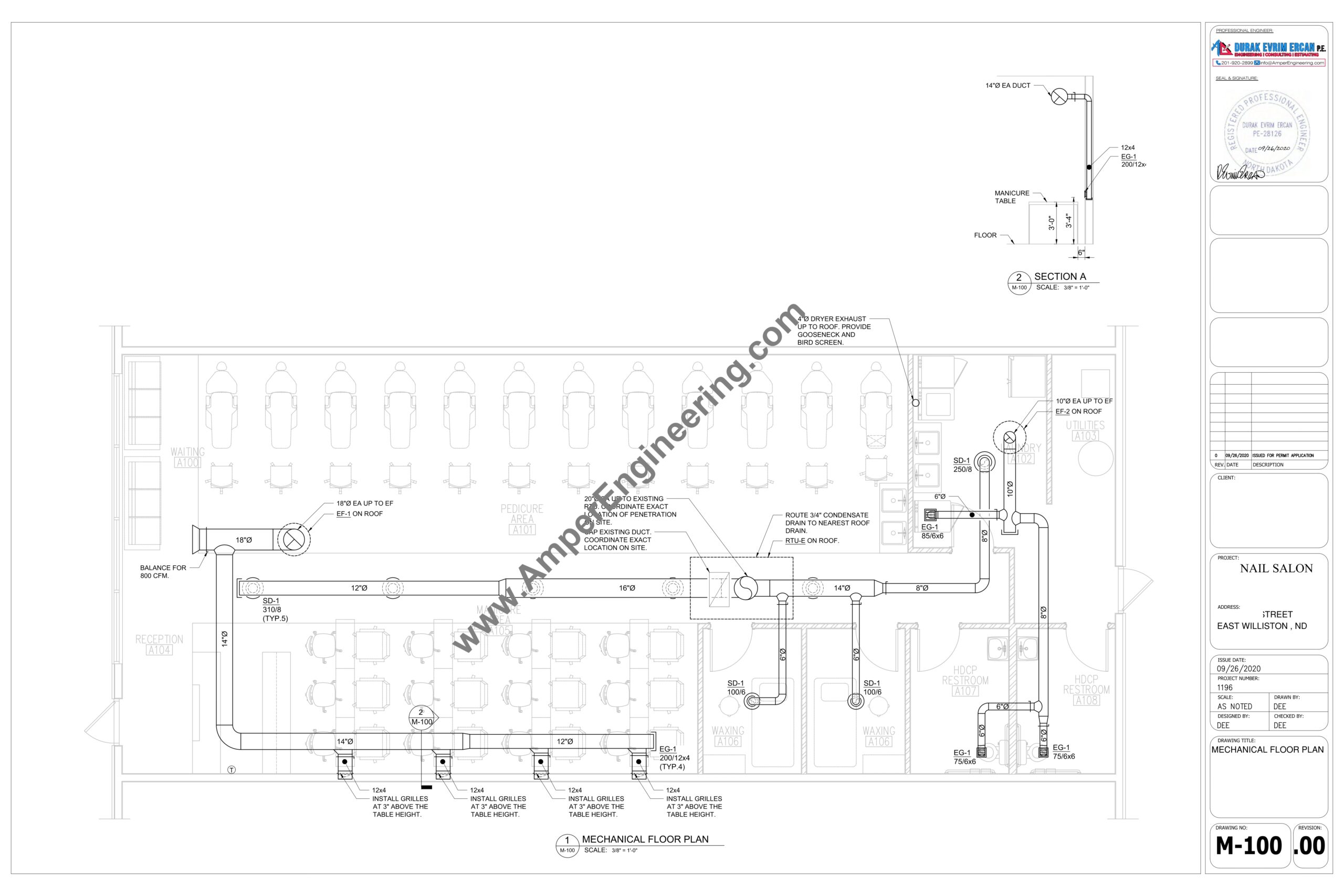
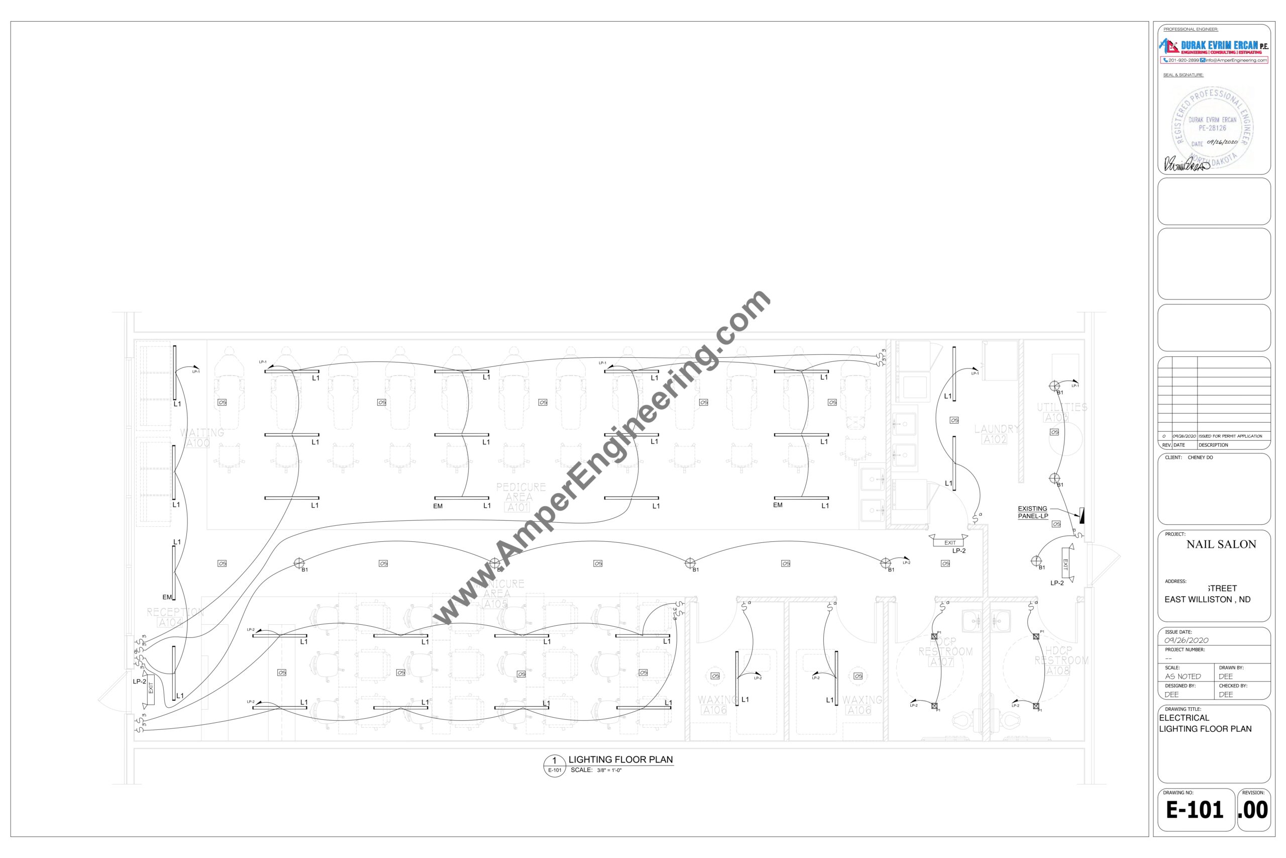
AmperEngineering carryout the full MEP design for the renovation of existing 4000sq-ft commercial space to be used for VIP Nail Saloon. The MEP design ensures that the building comply with the most up-to-date codes, regulations, and industry standards. Value engineering plays a vital role, wherein AmperEngineering analyze systems, components, and materials to identify opportunities for cost optimization without compromising quality or performance. The MEP design takes into account the specific requirements of the project, ensuring that the systems work harmoniously and efficiently. After completing the engineering design, AmperEngineering will PE signed & sealed and issued for approval to obtain local AHJ permit.
Copyright 2025. All rights reserved to Amper Engineering
Soliciting as Amper Engineering PC in NJ and sole practitioner in the remaining states.