#1157
Electrical
New Jersey
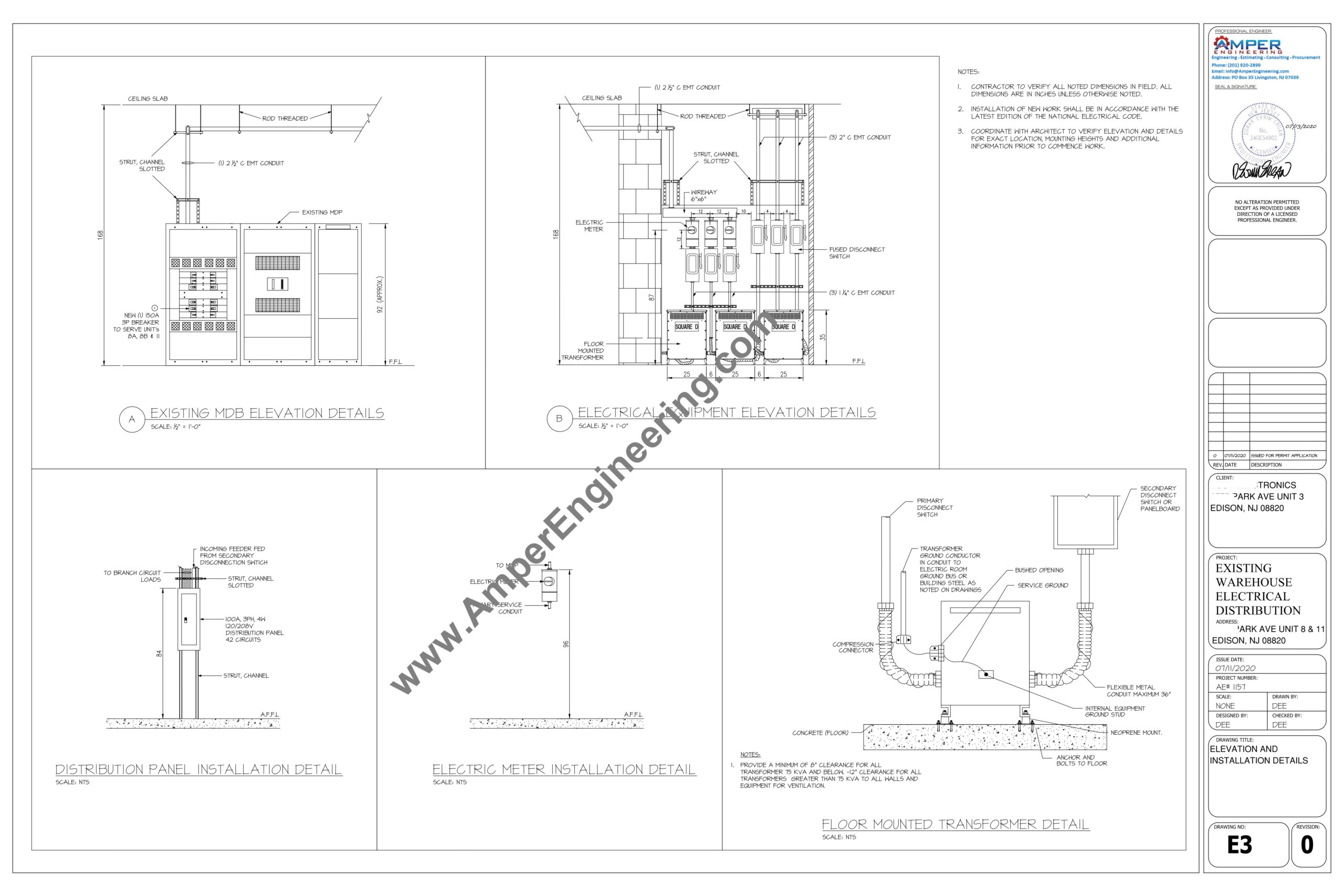
AmperEngineering carry out the electrical design by providing power distribution of new additional (3) electrical meters to main distribution board for existing warehouse. AmperEgineering will review the distribution network operators, the necessary electrical demand, power source verification from existing building electrical room or new transformers. From the electrical room, the power source will begin at existing MDP. New (1) 150A 3P breaker will be installed at existing MDP to serve the existing (3) warehouse.
From the new 150A CB, the electric power will distribute to the new (3) meter through wireway, then goes to floor mounted stepdown transformer 480V/208V, subsequently ends in panelboards individually to (3) existing warehouse. After completing the engineering design, AmpeEngineering will PE signed & sealed and issued for approval to obtain local AHJ permit.
Copyright 2025. All rights reserved to Amper Engineering
Soliciting as Amper Engineering PC in NJ and sole practitioner in the remaining states.